A U shaped kitchen layout is when the units of the kitchen are arranged in the shape of a U by running along three adjacent walls. This design layout is often used for medium sized to big kitchens. Read on to learn about different U shaped kitchen ideas you can adopt for your own kitchen.
Functionality and pleasing aesthetics are at the heart of the U shaped kitchen layout. When you have a functional and beautiful kitchen which is achieved by using some of these u shaped kitchen ideas, you will want to spend as much time as possible in the room.
:max_bytes(150000):strip_icc()/U-Shape-56a2ae3f3df78cf77278be74.jpg?strip=all)
The layout is designed with accessibility in mind, so it’s great for people who love to cook. The expansive storage and worktop surface area means there is plenty of space for food preparation and for a variety of kitchen appliances.
Benefits Of A U Shaped Kitchen By Capitol Design Build
This page gives you some excellent U shaped kitchen ideas you can use to enhance your kitchen and make it a place you can be proud of. If you need help with designing and fitting, Kitchen Fitters In Birmingham can provide a stress-free service.
When you are coming up with U shaped kitchen ideas, it’s important to consider the size of your room. Depending on how big it is, you’ll end up with a kitchen that’s practical for just cooking or one that can cater for entertainment and dining as well.
Although this type of layout is mostly used for medium to large sized kitchens, it can also be adapted for smaller and narrower rooms. However, if your kitchen is very small, we suggest you go for another kitchen layout that’s much more suited to tiny kitchens.
Tips To Think About When Designing An L Shaped Kitchen Layout
For maximum flexibility and ease of use, a fairly large square or rectangular room shape is best suited for a U shaped kitchen layout. When you have more room to play with, you can choose whether or not to include a dining table or an entertainment area in the kitchen.
Lighting is as important as the colour scheme in a U shaped kitchen because you need to ensure the room is well lit in order to avoid feeling overcrowded by the three walls of units.
The best kind of light is natural light. If your kitchen has large windows, this will help make the space feel more expansive and give the room a lovely natural brightness. Natural light is especially important if you have a narrow, small kitchen because it will help to make the room look and feel bigger and more airy.
Reasons To Include A U Shaped Kitchen In Your Home Remodel
If your kitchen is starved of natural light because the windows are small or nonexistent, the choice of artificial light becomes extremely important for a U shaped kitchen layout. We recommend installing a number of ceiling lights down the middle of the room that will provide enough light to the key sections of the kitchen.
The central ceiling lights should provide adequate lighting to the room but if you require more light you could fit lights underneath the cupboards and worktops. Not only will this provide additional light, it will also bring an incredibly stylish design feature to the room.
Ultimately, the design style you should opt for should depend on your taste and not on the U shaped layout of the kitchen. That being said, some design styles are more suited than others, especially when considering room size.

Advantages Of A U Shaped Kitchen Layout
For small and narrow kitchens, where more light is important, it is recommended to choose glossy finishes for the cabinets and units. This will allow the light to reflect off the surfaces and make the room look larger.
Once again, big kitchens have more options. Both glossy and matte finishes will work extremely well and either option would be a great choice for your U shaped kitchen.
In conclusion, a U shaped kitchen is an excellent choice for a lot of room sizes and it is an especially good choice for people who enjoy cooking. Even a small kitchen can become a perfect place for cooking because of the amount of worktop space and storage a U shaped kitchen provides. Not only that, if you have a big kitchen and love to entertain, a U shaped kitchen layout offers excellent entertaining and dining solutions.
Ways To Make The Most Of A U Shaped Kitchen Layout
If you want to get started with designing and fitting your U shaped kitchen ideas, Kitchen Fitters In Birmingham are ready when you are. Call us or get your free quote online and transform your kitchen into something incredible.Kitchen layouts play a vital role in the overall functionality of kitchen design. The proper positioning and arrangement of all kitchen units can be the key to maintaining organization and efficient workflow around the meal prep area. Speaking about the most popular kitchen layouts, we’re going to talk about the U-shaped kitchen, which can be applied to any kitchen regardless of size or available room space.
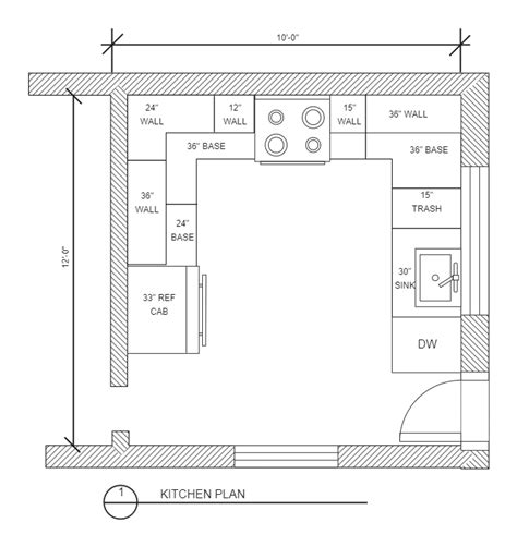
A U-shaped kitchen contains an arrangement of different kitchen units positioned on three adjacent walls that makes it appear to form the shape of the letter u. Known for its versatility, U-shaped kitchens can be enhanced by adding up a kitchen table or an island.

In case you are preparing for an upcoming kitchen remodeling project in Anaheim, you will have to familiarize yourself with the different types of kitchen layouts. For a U-shaped kitchen, here are some of the things that such a layout can offer:
U Shaped Kitchen Designs And Ideas
U-shaped kitchens allow two or more cooks to prepare food at the same time. This can be a major advantage if you have a big family or if your home occasionally holds public events or parties. Despite providing the capability for performing multiple kitchen tasks, U-shaped kitchens can still promote lesser traffic flow, which prevents anyone from accidentally bumping from each other as they cook.
Designing a U-shaped kitchen with counters on all three sides means that there is more than enough space for putting all the ingredients together. More counter surface provides a faster meal preparation process. Another thing worth mentioning is that smaller appliances that you seldom use can be stored inside the base kitchen cabinets to avoid any unwanted clutter.
U-shaped kitchens naturally adhere to the principles of the kitchen work triangle, which basically says that the three kitchen working stations (the cooktop, the sink, and the refrigerator) must be installed on three separate but highly accessible areas. With a safe distance from each other, the main work stations can be formed on a U-shaped kitchen without experiencing any issues concerning space.
G Shaped Kitchen Layout: 25 Design Tips + Tricks
Given that you have enough space, it’s possible to make your kitchen livelier and inviting with the existence of a center island. You can add some chairs or a couple of benches around the island to provide a space for your guests to sit and talk with each other as you prepare your dishes.

Are you in need of a kitchen remodeling contractor? Then you should check out Mr. Cabinet Care! Our company has been voted “Best Kitchen Remodeling Company” 13 Times. If you’re interested in upgrading the look and functionality of your kitchen to the next level, contact us today at (714) 961-1900 or visit our website/
Mr. Cabinet Care’s design team and incredible craftsmen have your best interests at heart. From design to installation our team is ready to help you achieve the kitchen of your dreams, faster than you can imagine.Welcome to the New Year – is it time to fulfill that resolution for a new U-Shaped kitchen? With the holidays behind us it’s time to start thinking about a fresh start, and perhaps this means a fresh new kitchen layout for you and your family.
Design A U Shaped Kitchen
is the shape made by the arrangement of the major appliances, countertops and storage areas. There are six fundamental kitchen layouts –
. The layout and floor plan create the kitchen’s primary work triangle: the path that you make when moving from the refrigerator to the sink to the range when preparing a meal. When designing your new kitchen and choosing the best kitchen countertops and/or cabinets for your home, one of the first considerations is the overall layout of the kitchen. With help from Ideal Home’s Jennifer Ebert we’ll talk more about the U-shaped kitchen.
The U-Shaped kitchen is the most viable layout for kitchens large and small, offering continuous countertops and ample storage throughout the space. As the name suggests, this kitchen design and configuration is comprised of a three-walled “U” shaped design (sometimes referred to as a “C-shaped” kitchen) with cabinetry and countertops running along three sides and an open end for access.

U Shaped Kitchen Vs L Shaped Kitchen: The Benefits Of Each & How To Choose
Its practical layout can provide an additional run of potential storage or appliance space compared with a galley kitchen or L-shaped kitchen. U-shaped kitchens work well in large spaces, but even small kitchens can benefit from a U-shaped design. Six feet of moving-around space between the opposite banks of units is recommended. The design concept of the ‘golden triangle’ is a natural fit with a U-shape: when designing your space, keep your fridge, cooker and/or hob and sink between 120cm and 270cm away from each other. This will make for a practical, time-efficient and safe use of your space, something that
0 comments:
Post a Comment