Get in touch to start cooking for delivery with . Want a tour, or just have questions? We're here for that to.
Running a commercial kitchen is all about efficiency. Back-of-house staff must be able to perform their duties without getting in one another’s way. This is especially true if you’re operating in a space with a smaller footprint, such as a ghost kitchen .

An assembly line layout is built to optimize the assembly of a meal. This is typically utilized for high-volume production, catering, or items in high demand. Food preparation starts at one end, and the dish is finished by the time it reaches the end of the “line.”
Small Commercial Kitchen Tips & Trends
This linear approach to kitchen workflow looks like this: In the first section, ingredients are prepared and assembled. From there, the line flows into the cooking area. This is followed by the plating or packaging station.
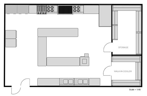
With this layout, the washing station and storage area tend to be located behind the line so as not to be in the way.
This type of layout divides the kitchen into zones according to the type of dish being made. Each station is isolated from the others and often segregated according to the type of commercial kitchen equipment or meal preparation required for that specific type of dish. A zone layout allows you to focus on assembling a wide range of menu items. Additionally, the sink and storage areas are typically closest to the entry-door, whereas the service area is closest to the exit door.
Principles Of Commercial Kitchen Floor Plans For Efficient Flow
A galley layout is often the go-to setup if you operate in a kitchen space with limited square footage. This type of layout has all of the different stations and equipment positioned along the kitchen walls. The name galley is derived from this layout's original use in boat kitchens, where space is extremely limited.
With this type of restaurant kitchen layout, the chefs and the food are the stars of the show; they take center stage and can often be seen by restaurant guests. All of the cooking equipment is centered in and around the island section. And other sections, such as the food preparation area and dishwashing area, will be pushed to the kitchen’s perimeter.
• The island acts as the focal point, allowing the executive chef to oversee all operations from the central spot of the kitchen
Restaurant Kitchen Floor Plan
Like an Island layout, an open kitchen layout allows the restaurant guests to enjoy the show. This contributes to a relaxed atmosphere where the curtain is drawn back, giving the meal a sense of intimacy and experience.
In most circumstances, the setup will be circular to allow easy flow and movement. Storage and dishwashing are pushed to the back, if not entirely out of view, whereas the cooking station and prep area are in the open. This is an especially popular option for chefs who use fire and spectacle with their cooking style.
Because this type of layout is specific to the restaurant, there’s no clear blueprint. Open kitchen layouts vary depending on the square footage, cooking equipment, food style, and head chef.
Choosing Between Restaurant Kitchen Layouts
Now that we’ve reviewed the five primary layouts for a commercial kitchen, how do you determine which one is ideal for your restaurant?
– The amount of square footage you have to work with will determine what you can or can’t do with a kitchen. Larger, more flashy layouts such as the open layout and the island layout are great for kitchens with more space. These types of layouts sacrifice the maximization of space in favor of spectacle and atmosphere, but they’d be impossible, or at least impractical, in many circumstances. If you have a small commercial kitchen space, or if you operate a ghost kitchen, an assembly line or galley layout make better use of the limited area.
.jpg?strip=all)
– Your menu will have a significant impact on your commercial kitchen design. Your kitchen must be tailored to the food you serve since that will determine the necessary storage area, preparation, equipment, and cooking stations. Naturally, if you have a diverse menu, a zoning or island layout could make it easier to prepare and cook multiple different types of dishes at a single time.
Seven Kitchen Design Ideas To Improve Your Restaurant
– A kitchen needs to be able to handle storage, food prep, cooking, delivery/service, and cleaning. Some of these elements may take precedence over others depending on your menu and whether you’re serving diners and delivery or solely serving delivery orders.
Follow health codes and safety regulations – Your kitchen layout design will be irrelevant if it fails to satisfy the commercial kitchen code requirements. Be sure to obtain all of the necessary licenses and permits and that your layout is developed according to these standards. This may include:
If so, you will have less flexibility when it comes to a restaurant kitchen layout because it’s a smaller space and you only pay for the work area you need. The average ghost kitchen is approximately 200 square feet and can function with four staff members, whereas a brick and mortar location is approximately 2100 square feet and requires 25+ staff.
Hotel Kitchen Layout: Designing It Right
Naturally, with a larger space and more staff members, you can take greater liberties regarding layout. But with a ghost kitchen your top goal is to optimize the existing space in order to focus solely on order volume. That said, you can still be creative with the available space, tailoring it to your specific needs and chef’s workflow—you just can’t waste it.
– With a ghost kitchen, you only pay for the space and staff that your delivery operations require. This lets you save money on rent, staffing, and the total amount of kitchen equipment you need to operate, which means you need less start-up capital.

– Because restaurants are a low-margin business, it is important to find ways to minimize cost and limit risky investments. Instead of opening a second traditional location, ghost kitchens allow you to expand your business without taking on the additional risk of having to manage yet another successful full-scale operation.
Small Restaurant Kitchen Design
– A ghost kitchen is often supplemental to an existing restaurant. When this is the case, it creates specialization, allowing you to focus on in-person diners at the brick and mortar location and delivery requests at the ghost kitchen.
If so, empowers restaurants to accomplish that in a quicker time frame and at lower costs, while providing all of the tertiary support a delivery operation may need. Each ghost kitchen comes stocked with a 3 compartment sink and a commercial hood. Each ghost kitchen, such as our ghost kitchens in Austin or our ghost kitchens in Philadelphia, comes stocked with a 3 compartment sink and a commercial hood. From there, you have the freedom to design a commercial kitchen layout according to your needs.
June 18, 2023 Innovative restaurant technology trends of 2023 | Restaurant technology is modernizing fast. Check out these 10 key restaurant trends and innovations that will keep you ahead of the curve.
Design A Commercial Kitchen Layout Yourself
June 15, 2023 What is a ghost kitchen?: the ultimate guide for your restaurant Explore different kitchen types, how they work & how to get started. Now you can reduce overhead costs, rent, & labor with ghost kitchens. Learn more today!Regardless of the size of your building, primary spaces play a significant role in your restaurant floor plan and its overall feel, look and function.
When developing a restaurant floor plan, the conventional method allots 60% to customer space and 40% to the kitchen. Doing so maximizes the seating area to serve the most guests. However, the shift to off-premise dining is changing how we view restaurant layouts.

Josh Broehl, senior vice president and managing director of design firm Big Red Rooster, told trade website Restaurant Dive that dining in accounts for about 15% of a typical restaurant’s sales compared with roughly 40% several years ago.
Kitchen Layout Ideas To Help You Take On A Remodel With Confidence
Before using a restaurant floor plan maker, it’s essential to consider how you’ll incorporate your guests and future needs into the design. Start by analyzing your primary spaces to get a feel for what restaurant layout design will work best for you.
Restaurant floor plans include 4 primary spaces: kitchen, restrooms, dining room and entry. How you configure these locations depends on a combination of factors, including local and state regulations.
While online restaurant floor plan creators help you visualize your layout, your first step is to review how your primary areas function. After all, your kitchen may require extra space to handle carry-out and delivery prep. Or your entry might double as a pick-up area for customers and third-party delivery drivers.
Commercial Kitchen Design: The 6 Design Principles You Should Know
In most cases, start with basic restaurant layout examples and consider how each concept fits your business model. But, “today’s kitchen will need to be built with tomorrow in mind, ” according to QSR Magazine. So, a modern restaurant floor plan should consider future opportunities. Consider these 3 standard commercial kitchen floor plans, then pick (and perhaps) tweak the best fit for your needs.
This open design places the main cooking equipment in the kitchen center with storage and food preparation along the outer edges. While this plan works best in a large square kitchen, a commercial kitchen designer

0 comments:
Post a Comment