The three priorities for Kitchen Lighting are to deliver overall brightness through general lighting, create functionality with task lighting, and provide a visually appealing space with accent lighting. In order to accomplish this task, you should incorporate these three layers of lighting into your space.
You may need one or several types of light fixtures in a room, depending on the layout, size, aesthetic and space available. Here is a checklist of lighting types to consider for a properly lit kitchen:

Like Halogen, Xenon and Krypton bulbs are also energy efficient incandescent bulbs. Xenon doesn’t get as hot as Halogen, and can be a better option in tight or enclosed lighting fixtures.
How To Light A Kitchen
Energy efficient bulbs are available in a wide variety of types, and have improved accuracy in how they render color, so everything looks more natural and alive.
LED bulbs are fast becoming the coolest light bulb of them all--literally, as they emit almost no heat and they thrive in cold locations.
The color temperature indicates the relative color that a light source has. It is measured on the Kelvin temperature scale. Light sources with warm light are lower in color temperature, usually around 2700-3000K. Light sources with white light (daylight) are usually around 3000-4000K. Light sources with cooler blue light are higher in color temperature, usually 4000K and over.
Choosing Kitchen Light Fixtures
Light dimmers offer flexibility in that area in-between, giving you just the right level of brightness as dictated by a given situation or desired mood. When choosing a dimmer, keep in mind:
In addition to our incredible specials and price promotions, is committed to offering you the lowest possible price on every product we sell, every day of the year. If you ever find the exact same product advertised for less anywhere, within 30 days of your purchase, please let us know and we will happily match that price. Keep in mind that shipping and handling fees will be taken into consideration. For example, if offers free shipping and the competitor charges for shipping, then the total price, including shipping, will be matched. We may require some form of verification of the offer and it must be made by an authorized dealer of the product, following manufacturer pricing guidelines and policies and it must be a stock item. The Low-Price Guarantee excludes clearance, closeout and returned items. Other restrictions may apply, but why not ask? For more information please contact Customer Service.
Offers standard or expedited shipping options to Hawaii, Alaska, and Puerto Rico. The shipping cost will be presented after your shipping address is entered during checkout.
Considerations When Creating A Lighting Plan For Your Home
Offers ground shipping options to Canada. The shipping costs include brokerage fees and do not include taxes or customs duties. These are listed at check out and collected along with your order payment. All pricing displayed across the site is in US Dollars.
Alessi, Artek, Arteriors, Artkalia, Bambrella, BDI, Bernhardt Design, Blomus, Blu Dot, Calligaris, Cane-line, Carl Hansen, Cherner Chair Company, Chilewich, Copeland Furniture, Driade, dweLED, Ethnicraft, Fermob, Fine Art Handcrafted Lighting, FLOS, Fredrick Ramond, Gan Rugs, Greenington, Gus Modern, Heller, Herman Miller, Hinkley, Hubbardton Forge, Huppe, Iittala, Kartell, Kebe, Knoll, Lafer, Lafuma, Lechuza, Loll Designs, Loloi, Luceplan, Lyon Beton, Magis, Marset, Midj, Minka Aire Fans, Modern Fan Company, Modern Forms, Modloft, Modloft Black, Moooi Carpets, Nanimarquina, Nelson Bubble Lamps, Nomon, Petite Friture, QLOCKTWO, Roll & Hill, Secto Design, Teckell, Toulemonde Bochart, Visual Comfort, Vitra, Vondom, WAC Lighting, ZANEEN design. Some eligible brands may include items that do not qualify for this promotion. This list is subject to change at any time. All open-box, clearance, light bulbs and some sale items are also excluded from this offer. Cannot be combined with any other offers or past orders.
&Tradition, Alessi, Artek, Arteriors, Bambrella, BDI, Bernhardt Design, Big Ass Fans, Blomus, Blu Dot, Calligaris, Capital Lighting, Carl Hansen, Casablanca Fan Company, Cerno, Cherner Chair Company, Chilewich, Contardi Lighting, Copeland Furniture, Corbett Lighting, Craftmade, Currey & Company, Cyan Design, dweLED, EcoSmart Fire, Eglo, Elan Lighting, ET2 Lighting, Ethnicraft, Fanimation Fans, Fatboy, Feiss, Fermob, Fine Art Handcrafted Lighting, FLOS, Fredrick Ramond, Fritz Hansen, Gabriel Scott, Gan Rugs, George Kovacs, Greenington, Gus Modern, Heller, Hennepin Made, Herman Miller, Hinkley, Hubbardton Forge, Hudson Valley Lighting, Humanscale, Hunter Fans, Huppe, Iittala, J. Adams & Co., Juniper Design, Kebe, Kichler, Knoll, Lafer, Lafuma, Lechuza, Loll Designs, Loloi, Louis Poulsen, Luceplan, Lyon Beton, LZF, Magis, Marset, Maxim Lighting, Metropolitan Lighting, Midj, Minka Aire Fans, Minka-Lavery, Mitzi - Hudson Valley Lighting, Modern Fan Company, Modern Forms, Modloft, Modloft Black, Monte Carlo Fans, Moooi, Moooi Carpets, Nanimarquina, Nelson Bubble Lamps, Nomon, Oxygen Lighting, Pablo Designs, Petite Friture, QLOCKTWO, Quorum International, Regina Andrew, Robert Abbey, Roll & Hill, RS Barcelona, Savoy House, Schonbek, Sea Gull Lighting, Secto Design, SONNEMAN Lighting, Stickbulb, Studio M, Tech Lighting, Teckell, Terzani, The Great Outdoors: Minka-Lavery, Toulemonde Bochart, Troy Lighting, Vibia, Visual Comfort, Vitra, Vondom, WAC Lighting, Zaneen Design

Beautiful Kitchen Pendant Lighting Ideas For Every Style & Budget
Some eligible brands may include items that do not qualify for this promotion. This list is subject to change at any time. Clearance, light bulbs and some sale items are also excluded from this offer. Cannot be combined with any other offers or past orders.
*Exclusions apply. One gift per customer, while supplies last. Offer valid for U.S. shipping destinations only. reserves the right to substitute an item of comparable value. Certain brands are excluded from this offer: Alessi, Artek, Arteriors, Artkalia, B&B Italia, Bambrella, BDI, Bernhardt Design, Blomus, Blu Dot, Calligaris, Cane-line, Carl Hansen, Cherner Chair Company, Chilewich, Copeland Furniture, Driade, dweLED, Ethnicraft, Fermob, Fine Art Handcrafted Lighting, FLOS, Fredrick Ramond, Gan Rugs, Greenington, Gus Modern, Heller, Herman Miller ...Hubbardton Forge, Huppe, Iittala, Kartell, Kebe, Knoll, Lafer, Lafuma, Lechuza, Loll Designs, Loloi, Luceplan, Lyon Beton, Magis, Marset, Midj, Minka Aire Fans, Modern Fan Company, Modern Forms, Modloft, Modloft Black, Moooi Carpets, Nanimarquina, Nomon, Petite Friture, QLOCKTWO, Roll & Hill, Secto Design, Teckell, Toulemonde Bochart, Visual Comfort, Vitra, Vondom, WAC Lighting, ZANEEN design. Some eligible brands may include items that do not qualify for this promotion. This list is subject to change at any time. All open-box, clearance, light bulbs and some sale items are also excluded from this offer. Cannot be combined with any other offers or past orders. + See MoreLighting is an essential factor in creating a relaxing atmosphere, making the kitchen the ultimate place to relax, enjoy a drink, prepare meals, do homework, play board games or simply take the time to read a good book.
During this isolation period, we are spending more time indoors (and spending more time surrounded by artificial light). It is therefore all the more important to ensure that the lighting in our homes has a positive effect on our stress level and our general well-being.
Seven Rules For Lighting Your Home #3: Stick To A Grid Layout
To help you optimize this aspect that often gets overlooked, we interviewed Maude Rondeau, president of Luminaire Authentik, to get her best tips for creating a cozy atmosphere in the kitchen.
Here are 7 golden rules that we always follow when designing lighting plans for our clients. To illustrate these rules, let’s take the example of this lighting plan which was recently created by our designer Bianca.

Before you begin, we suggest that you define your needs by dividing your lighting planning into four sections: ambient lighting, task lighting, accent lighting, and decorative lighting.
Kitchen Lighting Ideas
“We often suggest mixing functionality and design to create a temperature, choosing recessed lights for direct lighting and linear models with glass balls for more diffused lighting. Above the island, suspensions will provide warmer lighting in the kitchen, ” says Maude.
Mixing lights is key. “Using only recessed lights would make the atmosphere cold and clinical, but recessed lights work well with other types of lights. So always think about the function while aiming to create an atmosphere, ” adds Maude.
In order to create an atmosphere in the kitchen, we suggest that you treat this room as if it were part of the living room. It will then integrate harmoniously with the other rooms in the house.
Kitchen Lighting Ideas: Trends, Pictures & Inspiration
Task lighting refers to the lighting in the cooking area, the cleaning area and the food preparation area. Precise lighting directed towards these areas will allow you to work safely while reducing eye strain. LED light strips under the cupboards, recessed lights in the pantry or above the island and hanging lights are all great options to provide adequate lighting for these areas.

When planning your lighting, make sure that the light that will illuminate your worktop will not be positioned behind you. Instead, opt for ceiling lighting; thus, you will avoid creating shadows in front of you.
Our founder Brigitte fell in love with the Tolomeo work lamps by Artemide, which she hangs on her counter to light up her work plan when she’s cooking—and to create a relaxing atmosphere when she’s not!
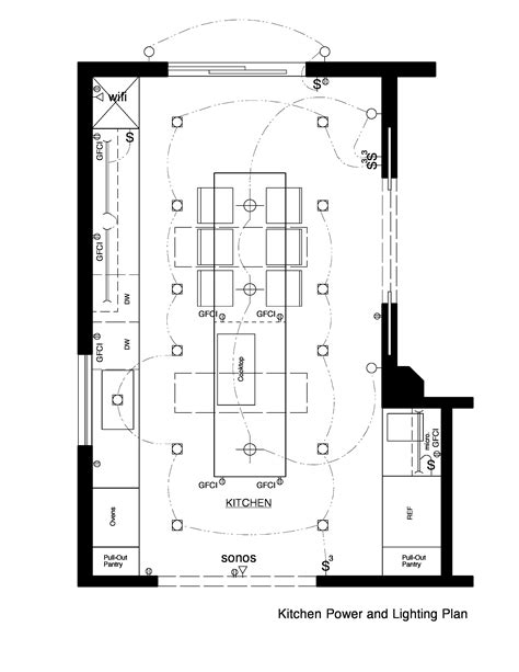
Lighting Floor Plans
Accent lighting is commonly used to direct attention to certain objects, such as works of art and collectibles. To do this, we suggest that you opt for wall lights or track lighting. In addition, if you have a glass cupboard, you can add a light inside to illuminate the contents.
This type of lighting can also be used
0 comments:
Post a Comment