A good restaurant floor plan can mean the difference between a crowded, chaotic environment and a spacious, relaxing environment. The best option for you, your team, your customers, and your business overall is the spacious, relaxing environment.
In this article, the restaurant management experts at Sling provide eight examples of restaurant floor plans that are sure to stimulate your creativity.
We’ve divided these floor plans into four general categories — kitchen, entry, bathroom, and dining room — so that you can focus on the good without getting lost in all the detail.
How To Design A Restaurant Floor Plan?
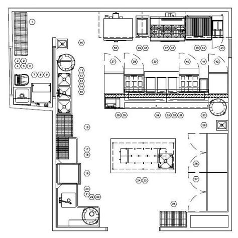
Notice that each job (cooking, beverage, food prep, dishwashing) has its own dedicated area in the above floor plan. This keeps traffic jams and congestion to a minimum so your team can work quickly and efficiently during the lunch and dinner rushes.
The kitchen layout shown below has its own delivery entrance that is separate from the food prep area. With that unique feature, your staff can accept deliveries, restock, and take inventory without getting in the way of the cooks and servers.
Another feature of this restaurant floor plan that deserves recognition is the staff changing room and bathroom in the lower right corner. These necessary areas give team members a place to go during their break and keep them from disturbing your customers.
Commercial Kitchen Design
Many restaurant owners overlook the entryway when considering their floor plan. But an attractive, well-maintained lobby can enhance your image and make all your guests feel comfortable.
We don’t know the exact dimensions of the entryway above, but the restaurant layout does one thing particularly well: it separates the guests just walking in from the guests already seated.
For those walking in, it sets a mood of exclusivity and stylishness. They wonder what’s going on around the corners and can’t wait to be seated. This improves the guest experience and gives the restaurant a touch of mystery and class.
How To Design A Restaurant Floor Plan: A Step By Step Guide
For the guests who are already in their seats, separating the entryway from the dining room(s) serves to create a bubble of privacy around their meal.
These guests aren’t distracted by all the people coming in and going out. They aren’t inconvenienced by the cold or hot air rushing in when outside doors are opened. And they aren’t subjected to the noise of those waiting for a table.
Similarly, the restaurant floor plan above separates the new guests from the dining guests. It also provides ample seating for those waiting for their table.
Choosing Between Restaurant Kitchen Layouts
Another well-thought-out feature you’ll notice is that the bathrooms are situated adjacent to the entryway. With the restrooms so close, waiting guests don’t have to trek through the dining room — disturbing the dining guests in the process — to use the facilities.
After the kitchen, the bathroom may top the list of the most important areas of your restaurant floor plan. This is remarkable since the bathrooms occupy such a small amount of space when compared to your restaurant as a whole.
The bathroom layout above provides ample facilities for close to 200 guests in your restaurant (not all at the same time, of course).
Small Restaurant Back Kitchen Layout Decors & 3d Models
ADD_THIS_TEXTThe only thing we would improve on is including a second sink (perhaps removing one urinal) in the men’s room. This provides three toilets and two sinks for each gender and prevents lines from forming near the restroom.
The above bathroom layout provides even more room for visiting guests. Notice the benches toward the bottom of the design and the vanity area in the women’s room (left side).
Including a separate mirror and counter space where ladies can freshen up prevents congestion at the sinks and makes moving around much easier.
Restaurant Floor Plan: Designing One That Draws Diners In
It’s also worth noting that both restrooms include a changing table (it’s not labeled on the women’s side) for guests with small children. This convenience can make your guests feel welcome and cared for without you or your team saying a word.
The dining area in your restaurant floor plan can make your guests feel relaxed and at-ease or rushed and distracted. It goes without saying that the former is better than the latter.

The layout above does a good job of isolating the dining rooms by combining the entryway and the bar in one corner of the restaurant. This layout also provides separate dining rooms for even more privacy when necessary.
Comprehensive Guide To Restaurant Kitchen Design
The eating area in this second restaurant floor plan (left side) is completely separated from the often noisy bar and busy bar, reception, and food prep areas (right side). This helps to maintain the ambiance created by the dining room itself.
At its most basic, your brand influences how your target audience perceives your business. But, your brand also informs many of the other design decisions you’ll face as a restaurateur.
For example, if your brand is formal, that plays a significant role in determining the number of tables in your dining room, the appropriate decor, and a whole host of other variables.
Most Important Factors In Designing Your Restaurant Interior
Because of the effect it has on your restaurant floor plan, it’s important to define your brand before you even start thinking about how to design your space.
Even if you have plenty of ideas in your head about what your brand is or will be, we recommend that you write it all down. That way, you can see it in full and start to refine it to better suit your goals and your customer’s preferences.
HVAC stands for heating, ventilation, and air conditioning. It’s one of the more important decisions you’ll face when designing your restaurant floor plan.
Draw Your Commercial Kitchen For Restaurant By Binsestudio
Nowhere is the importance of good HVAC more important than in the kitchen. Commercial kitchens produce a lot of heat, aromas, and smoke.
You don’t want those byproducts seeping into the dining room where they can affect your customer’s experience. Proper ventilation can ensure that this won’t happen.

Similarly, take into account both the high and low temperatures outside your building along with the body heat of the people inside. On a really hot day, at maximum seating capacity, can your air conditioning keep your customers cool, or will your restaurant quickly become a sauna?
Layout Of Restaurant A's Kitchen.
The same goes for heating in the winter. Can your furnace keep the dining room comfortable? You don’t want your customers bundled up in hats and scarves while waiting for their food.
Seating capacity is an essential variable to consider when designing your restaurant floor plan. The number of customers you can serve at any given time will largely dictate the profits your business brings in every day.
For sheer seating capacity, very few layouts beat the cafeteria design with row upon row of long tables and benches. But the cafeteria floor plan does very little for the other variable in this section: ambiance.
Importance Of A Good Kitchen Layout In Your Restaurant
Many restaurants these days occupy a middle ground where they’re concerned with both serving a good number of people and providing a pleasing ambiance.
With a little effort, your restaurant can find the right mix of ambiance and seating capacity to please your customers and contribute to your bottom line.
A great way to identify these “bad tables” is to sit in every single chair at every single table in your restaurant.
Skilled Existing Company Modification Commercial Kitchen Planner With Layout Design, Pan India, Restaurant Interior
While you’re sitting in each chair, be aware of the dining area around you. Are you getting a draft from the front door? Can you see into the kitchen or into a busser’s station? Are you too close to the next table?
It’s a room where you can replicate the ambiance, character, and color scheme so that your customers don’t lose the feelings you’ve worked so hard to elicit in the dining area.

Bathrooms should be kept clean and should be checked at least once an hour. We recommend that you assign a bus person, food runner, or host the responsibility of checking it every half hour to ensure that it’s tidy and stocked with supplies.
Restaurant Kitchen Design & Layout
Remember, a dirty restroom reflects on the business as a whole and makes customers wonder about the cleanliness of the areas they don’t see.
Many restaurateurs fail to consider storage when they’re designing their dream restaurant floor plan. But ample and easy-to-access storage space is important for the smooth operation and function of both your employees and your restaurant.
When evaluating your storage needs, it’s important to examine your restaurant’s purchasing and inventory process. Do you receive bulk deliveries once a month? Or do you receive small deliveries every week?
Kitchen Planning 101: A Quick Study Of Kitchen Layout Design
Similarly, does some of your inventory require special security? The answers to these questions will help you determine the amount of storage your restaurant needs.
It’s also important to make sure that storage space is easy to access and away from high-traffic areas. Keep your storage at the back of the restaurant but provide hallways that are wide enough to move large boxes in and out without a lot of problems.
You can also store more commonly used items along the perimeters of work areas so that your employees can get to them quickly.
Factors To Consider In Restaurant Kitchen Design
Whether you need dim lighting to create an intimate ambiance or bright lighting to encourage conversation, your light fixtures play a big role in defining your restaurant floor plan.
There are so many lighting options these days that it’s easy to step away from the everyday fluorescents, create a mood, and set yourself apart from other restaurants
.png?strip=all)
0 comments:
Post a Comment