1 the one wall kitchen robert peterson flynnside out originally called the pullman kitchen the one wall kitchen layout is generally found in studio or loft spaces because it s the ultimate space saver cabinets and appliances are fixed on a single wall
3 u shape kitchen floor plan a u shape kitchen allows the cook to take care of business while still being a part of the action in the adjacent room u shape kitchens are great for serious cooks because there 39 s a lot of open counter space which comes in handy when baking or preparing a big meal jay wilde

Kitchen dimensions 15 39 x 10 39 05 of 18 character counts three kinds of tile including harlequin tiles make a statement on the backsplash above the cooktop corbels beneath the upper cabinets are crafted from scraps of alder granite countertops complement the rustic cabinets
Reminiscent Provencal 15 X 30cm
1 20 of 6 187 photos 15 x 14 inches kitchen ideas save photo lg house kitchen thirdstone inc lg house edmonton design thirdstone inc photography merle prosofsky
Kitchen layout 15x15 and ceiling ideas get ideas photos kitchen diningkitchendining roompantrygreat roombreakfast nook livingliving roomfamily roomsunroom bed bathbathroompowder roombedroomstorage closetbaby kids utilitylaundrygaragemudroom outdoorlandscapepatiodeckpoolbackyardporchexterioroutdoor kitchenfront yarddrivewaypoolhouse
We set them out below the bad news is that you have to pick one which isn t always easy my favorite kitchen layout is a single wall with long island we used to live in a very cool open concept house with this layout and it was great for entertaining and on a day to day basis 1 single line with no island aka single wall kitchen 2
Beautiful Small Kitchen Designs And Ideas You'll Love
Since this parisian apartment had never been renovated in its 125 year existence the layout was obsolete designer jean louis deniot tells elle decor which he took as the perfect opportunity to transform the space with a 15 foot long marble island and matching countertops that stand out gloriously against the oak clad walls
If you have a home of 1500 square feet then 10 or 15 percent of that space or 150 or 225 square feet will be the allotted space for your kitchen minimum aisle width there are two aisle dimensions to consider and that is work and walkway aisles a work aisle is where you do the work in the kitchen the cutting the peeling and the cooking
In terms of style and platforms 15 15 kitchens can be tailored to the décor preferences of nearly any homeowner or professional chef contemporary designs like white marble countertops and recessed lighting and more traditional elements like hardwood cabinets and intricate tiling designs can all be incorporated into these flexible spaces
Best Rustic Kitchens
A 15 x 15 kitchen is a compact and efficient layout that can be a great choice for smaller homes or apartments while it may be smaller than some other kitchen layouts it can still be functional and stylish with the right design one of the benefits of a 15 x 15 kitchen is that it is relatively easy to navigate and work in
1 u shaped layout u shaped kitchen layouts also referred to as horseshoe designs are characterized by three walls or sections of countertop that create a semi circle or u layout u shaped designs work best in large kitchen spaces that have the room for three countertop sections
Kitchen large traditional l shaped kitchen idea in salt lake city with stainless steel appliances subway tile backsplash an undermount sink shaker cabinets dark wood cabinets marble countertops white backsplash and an island find the right local pro for your project get started find top design and renovation professionals on houzz

Small Kitchen Ideas For Even The Tiniest Of Spaces
Galley kitchen annie schlechter styling anne turner carroll a galley kitchen is simply two single wall kitchen layouts running parallel to each other this is another compact layout that works well in smaller homes and given the tight space between work zones is really optimized for only one cook if the interior wall closing off a galley
A kitchen layout is more than a footprint of your kitchen it 39 s a blueprint for how your kitchen will function in general there are three types of kitchen layouts u shape l shape and galley kitchens plus various combinations of each an open kitchen layout employing any one of the three standard layouts is another popular option
The l shaped layout the u shaped layout the island layout the peninsula layout the one wall kitchen 1 let your habits dictate the layout image credit harvey jones 39 every aspect of the kitchen how it works and how it is used is based around the layout 39 says sally hinks kitchen designer at harvey jones
Modern Navy Blue Kitchen Cabinets For A Captivating Culinary Haven • 333+ Images • [artfacade]
Specific types of wood or custom designs and sizes will impact your cost as well even more the size of your kitchen is going to impact how much you pay if you have a 10 x 10 l shaped kitchen layout versus a 15 x 15 l shaped kitchen design you re going to spend a different amount an average remodel of a kitchen will cost
U shape kitchen islands have widths that range from 15 18 4 6 5 5 m with overall depths and island dimensions that vary as needed u shape kitchen islands should be planned with an overall area of roughly 155 ft2 14 4 m2

Getting started with kitchen layouts in larger kitchens an island or two can break up the space in attractive ways help direct traffic provide convenient storage and present the chef with useful countertop work space that borders but does not block the work triangle for good traffic flow islands should have at least 3 or 4 feet of
Transitional Kitchen Ideas (photos)
L shaped kitchen layout yinyang getty images the l shaped kitchen layout is a classic design that satisfies the needs of most medium sized homes and has been used successfully for decades forming the letter l cabinets extend in two directions often with one section of cabinets longer than the other section
Addison 6 years ago whole house gut remodel needing help with kitchen layout ideas electrical and plumbing can be moved anywhere but i have doorways that really break up the space going more for work zones than triangle there is no additional dining area kitchen and living room are one 15 25 39 x 23 5 39 space
What s included in the 10 x10 kitchen price our full kitchens are shown with a standard 10 x10 kitchen layout price which includes cabinets door and drawer fronts drawers shelves hinges cover panels toekicks and legs in a single style your choice of countertops knobs and handles sinks faucets lighting appliances and
Kitchen Layout Ideas: 28 Ways To Configure Cabinetry |
The l shaped kitchen design plan is the most popular kitchen layout this layout features two adjoining walls that meet in an l shape both walls hold all the countertops cabinets and kitchen services with the other two adjoining walls open for kitchens that have a large square space an l shaped layout is highly efficient versatile and
:max_bytes(150000):strip_icc()/258105_8de921823b724901b37e5f08834c9383mv2-257fc73f16c54e49b039de33ce6fa28f.jpeg?strip=all)
Custom corner cabinets made with pie shaped drawers are one option for creating a more effective corner area of your kitchen keep in mind that with a pie shaped drawer you will need to come up with a creative cabinet pull system or have double pulls one set for each side of the pie if pull out drawers or even pull out inner cabinet shelves
1 inadequate circulation space failing to allow enough circulation space can make a kitchen feel cramped and restrict the number of people who can comfortably use the space at the same time says jenefer gordon principal at interior design firm eat bathe live it causes even more issues when your kitchen doubles as a thoroughfare
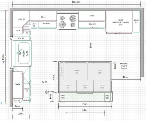
Kitchen Layout Plan Free Cad Block
15 middle country rd selden ny 11784 opening hours open today until 8 00 pm friday design package free kitchen measure free expert design appointment
0 comments:
Post a Comment