Search results for 9x10 kitchen ideas in kitchen photos photos shop pros stories discussions all filters 1 style color size cabinet finish counter color counter material backsplash color floor material number of islands
Caitlin sole updated on june 30 2022 find small kitchen design ideas to fit your home 39 s traditional style these smart small kitchen layouts maximize space pack in must have kitchen amenities and all without sacrificing good looks 01 of 18 u shape floor plan

Popular kitchen layouts 02 45 here 39 s a guide to the pros and cons of the most popular kitchen layouts basic kitchen layout types 1 the one wall kitchen robert peterson flynnside out originally called the pullman kitchen the one wall kitchen layout is generally found in studio or loft spaces because it s the ultimate space saver
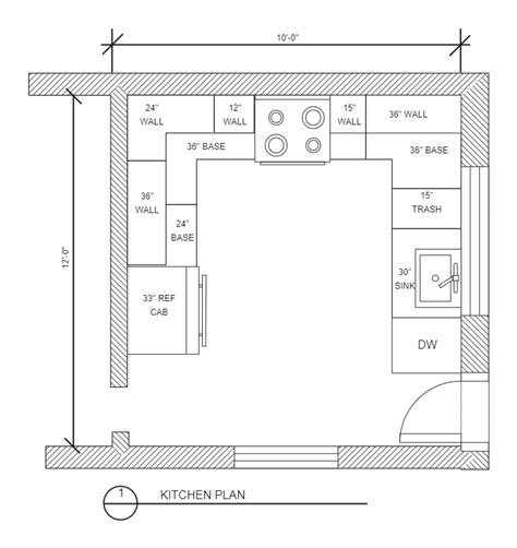
What Is A 10 X 10 Kitchen Layout?
Design by k shan design this small kitchen from k shan design has a big personality and an eclectic upbeat vibe thanks to colorful wallpaper black and white check tile flooring geometric backsplash tile and blingy gold bar stools around the peninsula continue to 33 of 52 below 33 of 52
Caitlin sole updated on june 12 2020 a successful small kitchen needs an efficient layout smart cabinetry and plentiful storage see how it 39 s done by touring these savvy compact kitchens packed with impressive features 01 of 26 combine old and new mix it up
1 l shape kitchen floor plan an l shape is one of the most common layouts for kitchens it requires less space and offers more flexibility in the placement of workstations this plan works well when the kitchen adjoins a casual room like a family room or eating area laurie black
Standard Dimensions Of A Kitchen: What They Are
9 great 10 x 12 kitchen layouts huy pham updated october 22 2022 in most homes a 10 foot by 12 foot kitchen represents a decent sized space that can offer plenty of storage solutions and generous countertop space for preparing meals
Our full kitchens are shown with a standard 10 x10 kitchen layout price which includes cabinets door and drawer fronts drawers shelves hinges cover panels toekicks and legs in a single style your choice of countertops knobs and handles sinks faucets lighting appliances and accent cabinet pieces are sold separately
Table of contents show a 8 kitchen layouts diagrams the good news is that there are 8 main kitchen layouts to choose from actually you can lay out your kitchen in more formations than that but there are 8 common layouts we set them out below the bad news is that you have to pick one which isn t always easy
Renaissance Daze: Kitchen Renovation: Updating A U Shaped Layout
Ikea kitchen e planner hgtv 10 x 9 kitchen design mycoffeepot org 50 best small kitchen design ideas decor solutions for 9 x 10 galley kitchen reno with ikea cabinets cost 2 600 12 x 10 kitchen layout ideas with images floor plans 9x10 kitchen design you best diy post navigation how to refinish hardwood flooring where to gl countertops

A minimum central width of 5 1 53 m must be provided for use but it is recommended that this interior zone be enlarged to between 6 8 1 8 2 4 m in the short direction to provide adequate room for multiple people to move comfortably
What is a 10x10 kitchen layout a 10x10 kitchen layout is a basic sample l shaped kitchen design this type of layout is used across the kitchen industry to aid customers in comparing cabinet costs of various door styles to find out which is best for your remodeling budget
Dwell Vienna Metro
1 u shaped layout u shaped kitchen layouts also referred to as horseshoe designs are characterized by three walls or sections of countertop that create a semi circle or u layout u shaped designs work best in large kitchen spaces that have the room for three countertop sections
Full package 10 by 10 kitchens are basic low cost projects ten by ten foot default average kitchen size as it turns out 10 by 10 feet or measurements that total 100 square feet is a fairly common dimension for kitchens but only when you define a kitchen by the true food preparation space

Island islands tend to work best in l shaped kitchens that measure at least 10x10 feet and open to another area increase the functionality of your kitchen by equipping the island with a cooktop or outfitting it with barstools for casual dining 05 of 11 spacious island this l shaped kitchen layout features an island in the middle
Kitchen Design And Renovate Project
5 add a full size island with a prep sink and seating 6 upgrade to stone or hardwood flooring 7 add custom cookware storage by the range 8 replace the range with a pro style gas model and a canopy hood 9 swap out the sink for a wider deeper single bowl model 10 add pullout trash recycling bins under the sink
About press copyright contact us creators advertise developers terms privacy policy safety how youtube works test new features nfl sunday ticket press copyright
Lesscare kitchen cabinets 10x10 layouts aaa distributor llc classic square white shaker style l shaped kitchen with soft close hardware and lazy suzan base kitchen cabinet measuring 120 inches left side by 120 right side and 84 wall height l shape 10 feet by 10 feet kitchen cabinet combination

Seeking Input On Our Kitchen Design
If you can place your sink underneath a window this will provide natural lighting and the illusion of a brighter more open space while you 39 re working on food prep or washing the dishes use our expert tips below to start designing your u shaped kitchen no matter the size of your space
The 10x10 kitchen layout is a standard dimension that cabinet retailers use to help you estimate and compare the cost of new cabinets for your kitchen the 10x10 represents the square footage of a kitchen 100 square feet in total the size of most small to average kitchen layouts
Woodinville retreat user 10 39 ceilings and 2 story windows surrounding this space not in view bring plenty of natural light into this casual and contemporary cook 39 s kitchen other views of this kitchen and the adjacent great room are also available on houzz builder robert egge construction woodinville wa
What Is Kitchen Layout
1 install new cabinetry and hardware 2 upgrade to granite counters and a glass tile backsplash 3 add a pop up mixer stand 4 trade the range for a double wall oven microwave flanked by tall pantry cabinets 5 install slate or other natural stone flooring 6 add a two level island with seating
:max_bytes(150000):strip_icc()/exciting-small-kitchen-ideas-1821197-hero-d00f516e2fbb4dcabb076ee9685e877a.jpg?strip=all)
We would like to show you a description here but the site won t allow us
0 comments:
Post a Comment