The kitchen is the heart of most homes. It’s used for much more than just preparing meals. It’s where the family gathers to catch up, guests congregate to chat, and our kids sometimes do their homework. It’s absolutely essential to create a flexible, comfortable, and efficient environment for the multi-purpose uses of the kitchen.
There are many good reasons why the L-shaped kitchen layout is the most popular kitchen design. The L-shaped layout works in kitchens of all shapes and sizes and is one of the most ergonomic designs for an efficient workflow.
:strip_icc()/RENOVCH7M-0df14a976a704e609353ac3dad188b1f.jpg?strip=all)
Cooks love this basic layout, as it reduces the walking time between the refrigerator, stove, and sink –the focal points of every kitchen.
Best Kitchen Layout Ideas For Your Renovation
We have put together 6 tips to help you create the perfect L-shaped kitchen layout. But first, let’s talk about what an L-shaped layout is.
Just like the name sounds, an L-shaped kitchen layout is defined by two perpendicular walls — one longer and one shorter that meet to form an L.
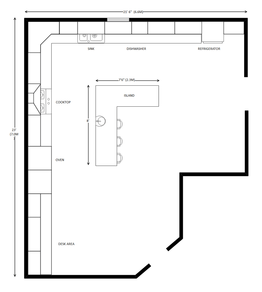
Typically along the longer wall, you have most of your counter space and cupboards. Along the shorter wall, you will have less counter space with one appliance — often the stove. Here’s a typical L-shaped kitchen floor plan for a small space to give you a better idea:
Ideas For A U Shaped Kitchen Layout
Many L-shaped kitchen layouts also include an island to provide more countertop space, sometimes a sitting area with bar stools, and additional storage.
The kitchen work triangle (also known as the kitchen triangle or the golden triangle) is a simple concept that states the fridge, stove, and sink should form a triangle within your kitchen layout.
Each side of the triangle should be between four and nine feet apart for optimal efficiency. Too big and you’ll have further to walk, too small and you’ll create a congested or cramped workspace.
Kitchen Floor Plans To Maximize The Heart Of Your Home
Once you’ve added your main kitchen appliances like your fridge, stove, and sink, you’ll need to consider how many additional appliances to include. The list is almost endless, from dishwashers and small under-counter beverage fridges to smaller items like toasters, microwaves, and coffee machines.
Keep in mind small appliances that don’t go under the counter take away much-needed countertop space from your kitchen. This is especially important if you’re working with a small L-shape design.
Top Tip Use the 3x4 rule to calculate countertop space. This rule states that a kitchen needs three separate countertops that should each be approximately four feet long.
U Shaped Kitchen Layout: 25+ Design Ideas And Tips
The 3x4 rule is related to the kitchen work triangle idea. As there are three stages to creating a meal (food prep, cooking, and cleaning) you should reserve three countertop areas for each stage. Preferably each countertop area should be close to your three main appliances, the fridge, stove, and sink.
Before you dive right in and commit to the L-shape, it’s worth considering some of the alternative kitchen layouts. Common plans include galley, single-wall, U-shape, and G-shape.
Each has its own advantages and disadvantages. Your room shape, room size, and budget will be the main factors when choosing which layout you will use.
Design Ideas For An L Shape Kitchen
To make life easier, why not plan your kitchen design first using the App? You can quickly compare each option, see how they work with your specific requirements and room dimensions. allows you to easily create 2D plans, or even visualize your new kitchen in stunning 3D.

By design, an L-shaped layout limits you to only two rows of upper and lower cabinets. Compared to U-shaped or G-shaped designs, this can lead to limited storage options. Especially in small rooms.
A clever solution in an L-shaped plan is to go vertical and stack an additional row of cabinets above. This works well if your room has high ceilings.
What's The Right Kitchen Design Layout For Me?
Top Tip Another great way to maximize storage capacity is to make the most of corners. Use carousel units to ensure no space is wasted. 5. Think About Adding an Island
Adding an island to a traditional L-shaped kitchen layout gives you the best of both worlds. You retain the openness and efficiency of the design while also adding extra countertop space, possibly seating, and definitely storage.
You can also add a large butcher block top to your island to create a great food prep area in your kitchen. However, try not to compromise the efficiency of your kitchen by obstructing the work triangle.
Kitchen Design 101: What Is A G Shaped Kitchen Design?
If your room has a doorway or large window in the corner, you can still make use of an L-shaped design. Commonly referred to as a broken L-shaped layout, this alternative still provides all the benefits and efficiency of a standard L-shape:
We hope we have inspired you to create the perfect L-shaped kitchen — an inviting and efficient place to cook, entertain and just hang out.

Enjoy designing your new kitchen or upgrading your existing one. Remember, you can use the App to speed up the process and quickly compare all the options.PASCAL LANE CHALK KNOLL SUMMIT CREEKSEDGE NAMELESS ROAD BAUERLE BEND OF THE RIVER WATERSEDGE MONTE VISTA DAYSTAR HILCROFT COVE OAK VISTA CHICORY COVE WEST AVENUE RAE DELL
L Shaped Kitchen Designs
In our last blog, our Austin architects discussed the 8 essential kitchen design elements to consider when remodeling or designing a kitchen for your new home. Once you have decided on the most important elements to include in your kitchen, you need to find a place to put them! That’s where the architects come in to design a functional kitchen floor plan. There are 6 main kitchen layouts to consider when planning your kitchen design. While the layout may be dictated by existing structural elements of the home, it is good to familiarize yourself with the options available. The architects at our Austin, TX residential design studio outline the top 6 kitchen floor plans as well as the pros and cons of each kitchen design layout.
Whether you are planning your first remodel or building your first house , the kitchen will be one of the main spaces to focus your design efforts. Our architects in Austin, TX, have put together a list of the most popular kitchen layout ideas to help you decide which kitchen floor plan is right for your home and lifestyle.
A single-wall or one-wall kitchen layout is the most basic kitchen floor plan available. In this design, all kitchen cabinetry, counters, and appliances are anchored against one wall. Typically, single-wall kitchen layouts are used in small spaces, lofts, or kitchenette designs.
Free Editable Kitchen Layouts
Pros: Single-wall kitchens are efficient space savers and budget-friendly. They are a great floor plan option for smaller homes or secondary kitchenettes in bonus spaces.
Cons: Single-wall kitchen designs can lack wow-factor impact and definition in open-concept floor plans. While functional, one-wall kitchens tend to have limited counter and storage space.
Galley kitchens are common in older homes, but they are also making a comeback as some homeowners choose to move away from open-concept kitchen plans. This kitchen design features two parallel rows of cabinets and counters with a walkway going down the middle. Galley kitchens offer an efficient workflow, and they are less expensive to design and build than other more complicated kitchen layouts. However, it is essential to leave a large enough walkway for easy traffic flow when creating a galley kitchen. While traditional galley kitchens are closed off, they can be redesigned into open-concept spaces. Adding a large opening in one of the walls is a great way to connect a galley kitchen to the rest of the home’s floor plan.
:strip_icc()/RENOVCH7K-a9804503bf5b45399545ff2211fcb0fa.jpg?strip=all)
Unique U Shaped Kitchens And Tips You Can Use From Them
Cons: Galley kitchens are associated with older home designs and typically don’t offer sightlines into living areas or room for a kitchen island.
L-shaped kitchens feature two perpendicular rows of counters and cabinets that join in a corner to form an “L” shape. L-shaped kitchen floor plans are one of the most widely used layouts because they offer extended counter space, plenty of storage, and an open feel. An L-shaped kitchen will typically open into another living area and provide room for an in-kitchen dining space. With proper appliance placement, L-shaped kitchens manage traffic flow well and provide a great workspace.
Pros: L-shaped kitchens offer more counter space, storage options, and an open feel. This kitchen design is great for homeowners who love to cook and want a large work triangle to prepare meals efficiently.
L Shaped Kitchen: Great Design Ideas From An Expert Architect
Cons: L-shaped kitchens require more finishing materials and custom cabinetry to address corner storage, making them more expensive to design and build.
U-shaped or horseshoe kitchens include three walls of cabinetry, counters, and appliances that join at two corners and form a “U” shape. U-shaped kitchens typically offer the most storage and prep space of all the kitchen designs out there, making this layout perfect for homeowners who love to cook and entertain.
Cons: Since more cabinet and counter space means more materials, U-shaped kitchens can be expensive to build. This kitchen design also takes up a lot of square footage, so it may not be suitable for a smaller home.
Kitchen Design 101: What Is A U Shaped Kitchen Design?
Kitchen islands are one of the most popular and requested features by homeowners in kitchen designs. An island is a section of cabinetry and countertop that is not connected to a wall. A kitchen island can house additional appliances, serve

0 comments:
Post a Comment